Nekustamie īpašumi

Komercobjekti Iznomā telpas Gaujas ielā, Cēsīs

Īss apraksts

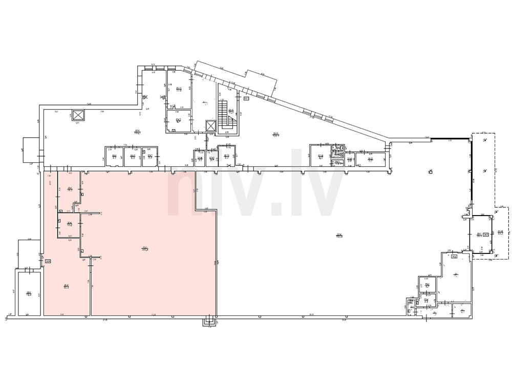
Iznomā telpas - daļu no ēkas - Gaujas ielā, ar ērtu piekļuvi klientu un piegādes vajadzībām. 

Par īpašumu:

  • Platība: 454 m²;
  • Stāvs: 1/2;
  • Pielietojums: noliktavas, ražošanas, tirdzniecības u.c. līdzīga veida uzņēmējdarbības vajadzībām;
  • Komunikācijas: centrālā apkure, pieslēgums pilsētas ūdensvadam un kanalizācijas sistēmai;

Telpās divas atsevišķas ieejas, no kurām viena īpaši piemērota piegādēm ar paletēm. Kravas lifts ēkas iekšpusē atvieglo preču transportēšanu starpstāvos un pa līmeņiem. Papildu palīgtelpas, ko var izmantot kā biroju, noliktavu vai papildus darba zonu. Iespēja nomāt arī 2. stāva telpas (224 m²). 

Blakus telpās atrodas veikals "top!" un Mēness aptieka. Klientiem pieejams automašīnu stāvlaukums ar ērtu piebraukšanu. Īpašumam laba atrašanās vieta pilsētā, blakus sabiedriskā transporta pieturām, daudzveidīgu uzņēmumu vidē.  

Funkcionālas telpas Jūsu uzņēmumam! Vairāk informācijas, zvanot pa norādīto tālruni. 

454 m2

454

  • Elektrība
  • Ūdensvads
  • Kanalizācija
  • Stāvlaukums
  • Apkure
Apskatīt plānus

Adreses

Valmiera: Rīgas iela 39, LV-4201
Cēsis: Raunas iela 15, LV-4101
Valka: Rīgas iela 11, LV-4701

Kontaktinformācija

Epasts: Šī e-pasta adrese ir aizsargāta no mēstuļu robotiem. Pārlūkprogrammai ir jābūt ieslēgtam JavaScript atbalstam, lai varētu to apskatīt.

Tālrunis: +(371) 642 07022

Seko mums