Nekustamie īpašumi

Dzīvokļi Mājīgs četristabu dzīvoklis Cēsīs, Ģimnāzijas ielā

Īss apraksts

Pārdod mājīgu, izremontētu, labas kvalitātes četristabu dzīvokli Cēsīs, Ģimnāzijas ielā (iepriekš – Leona Paegles ielā). Gaišs, dabīgās gaismas piepildīts dzīvoklis – labs pamats Jūsu dzīvei Cēsīs.

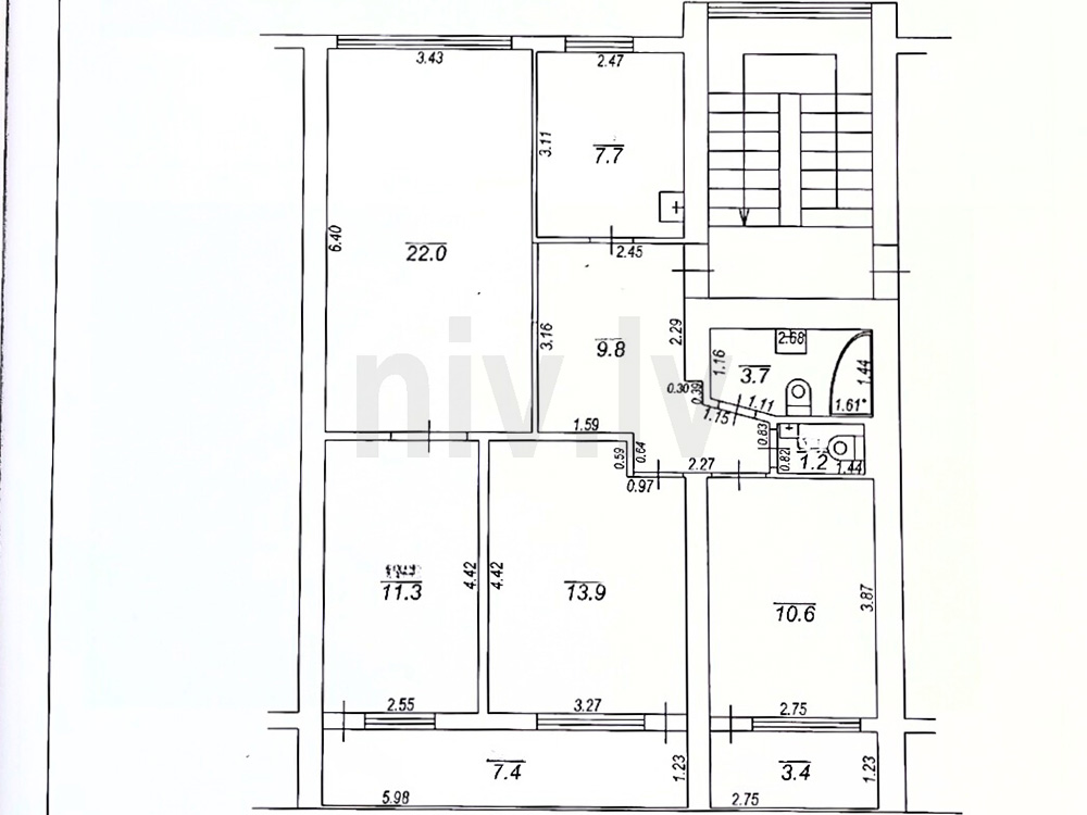
  • Platība: 91 m2;
  • Stāvs: 4/4;
  • Plānojums: gaitenis, četras istabas (viena caurstaigājama, trīs izolētas), virtuve, tualete, vannas istaba, lodžijas;
  • Gatavs dzīvošanai uzreiz - tiek pārdots ar aprīkotu virtuves iekārtu, iebūvētiem skapjiem, santehniku;

Dzīvokļu ēka atrodas labā atrašanās vietā pilsētā – mierīgā apkārtnē, tuvumā atrodas pārtikas veikali  (“Labais”, “Rimi”), izglītības iestādes (Cēsu Valsts ģimnāzija, Draudzīgā Aicinājuma Cēsu Valsts ģimnāzija, Cēsu pilsētas 4. pirmsskolas izglītības iestāde), sabiedriskā transporta pieturas, Cēsu Sporta komplekss un Ruckas parks. Pilsētas centrs vien 1.5 km attālumā.

Vairāk informācijas, zvanot uz norādīto tālruni.

PĀRDOTS

91 m2

91

  • Elektrība
  • Ūdensvads
  • Kanalizācija
Apskatīt plānus

Adreses

Valmiera: Rīgas iela 39, LV-4201
Cēsis: Raunas iela 15, LV-4101
Valka: Rīgas iela 11, LV-4701

Kontaktinformācija

Epasts: Šī e-pasta adrese ir aizsargāta no mēstuļu robotiem. Pārlūkprogrammai ir jābūt ieslēgtam JavaScript atbalstam, lai varētu to apskatīt.

Tālrunis: +(371) 642 07022

Seko mums

Uzzināt vairāk

Contact us

Your message has been sent sucessfully