Nekustamie īpašumi

Komercobjekti Gaišas biroja telpas Valmierā, Stacijas ielā

Īss apraksts

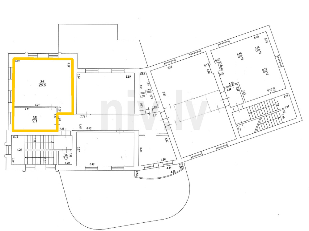
Iznomā biroja telpas ērtā atrašanās vietā Valmierā, Stacijas ielā. Kvalitatīvas, gaišas un dabīgās gaismas piepildītas telpas (divi kabineti) ēkas trešajā stāvā. Kopējā platība – 35.6 m2. Nepieciešamības gadījumā pieejamas papildus platības.

Klusa, mierīga darba vide. Ēkas nomnieki – apsardzes firma, Tamrex veikals un citi pakalpojumu sniedzēji. Pie ēkas stāvlaukums.

Lieliska un stratēģiski izdevīga atrašanās vieta daudzveidīgu uzņēmumu vidē, netālu no Valmieras autoostas un sabiedriskā transporta pieturām, Vidzemes Augstskolas, Liepkalniem, pārtikas veikaliem (Rimi, Lidl), 700 m attālumā no pilsētas centra.

Vairāk informācijas – zvanot pa norādīto tālruni.

35.6 m2

35.6

  • Elektrība
  • Stāvlaukums
  • Apkure
Apskatīt plānus

Adreses

Valmiera: Rīgas iela 39, LV-4201
Cēsis: Raunas iela 15, LV-4101
Valka: Rīgas iela 11, LV-4701

Kontaktinformācija

Epasts: Šī e-pasta adrese ir aizsargāta no mēstuļu robotiem. Pārlūkprogrammai ir jābūt ieslēgtam JavaScript atbalstam, lai varētu to apskatīt.

Tālrunis: +(371) 642 07022

Seko mums

Uzzināt vairāk

Contact us

Your message has been sent sucessfully