Nekustamie īpašumi

Komercobjekti Telpas komercdarbībai Valmieras centrā

Īss apraksts

Komerctelpas stratēģiski izdevīgā vietā Valmierā, Rīgas ielā 32, pilsētas centrā ar stabilu gājēju un automašīnu plūsmu visa gada garumā. Iespēja nomāt daļu vai visu platību.

Ilgtermiņa nomai piedāvājam telpas ar plašu, funkcionālu un elastīgu risinājumu dažādu biznesa modeļu izveidei - birojiem, pakalpojumu centriem, reģionālajām pārstāvniecībām, u.c.. 

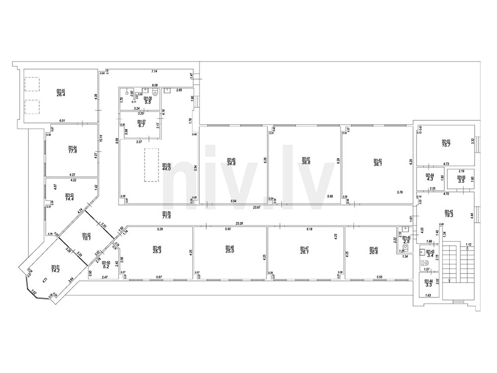
  • Platība: 467.4 m2;
  • Stāvs: 3/3;
  • Plānojums: kvalitatīvi, saulaini, dabīgās gaismas piepildīti darba kabineti, atpūtas zona ar aprīkotu biroja virtuvi, pieejamas arī atsevišķas sanitārās un tehniskās telpas, nodrošinot ērtu un efektīvu darba vidi.
  • Neatkarīga ieeja ēkā, ērta piekļuve, stāvlaukums aiz ēkas, kas nodrošina komfortu darbinieku, klientu un biznesa partneru vajadzībām;

Stratēģiska atrašanās vieta uzņēmumiem, kas vēlas stiprināt savu klātbūtni Valmierā un Vidzemes reģionā. Telpas ir piemērotas uzņēmumiem, kuri novērtē kvalitatīvu infrastruktūru, pieejamību un labu atrašanās vietu Valmierā.

Vairāk informācijas, zvanot uz norādīto tālruni.

467.4 m2

467.4

  • Elektrība
  • Ūdensvads
  • Kanalizācija
  • Stāvlaukums
  • Apkure
Apskatīt plānus

Adreses

Valmiera: Rīgas iela 39, LV-4201
Cēsis: Raunas iela 15, LV-4101
Valka: Rīgas iela 11, LV-4701

Kontaktinformācija

Epasts: Šī e-pasta adrese ir aizsargāta no mēstuļu robotiem. Pārlūkprogrammai ir jābūt ieslēgtam JavaScript atbalstam, lai varētu to apskatīt.

Tālrunis: +(371) 642 07022

Seko mums

Uzzināt vairāk

Contact us

Your message has been sent sucessfully